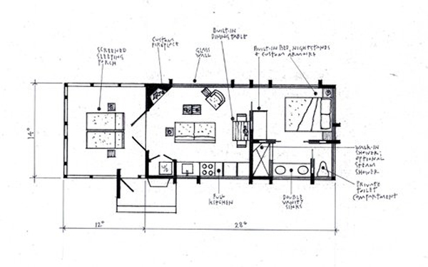
Na prvý pohľad malá chatka, avšak z vnútra ide o plnohodnotný dom s obývačkou, kuchyňou, kúpeľňou, izbou a zimnou záhradou.
Aj keď nie je interiér priestranný má niekoľko pozitívnych vlastností. Tento mini dom je útulný, vyrobený z prírodných materiálov, šetrí finančné náklady a je prenosný. Keďže sa dá premiestňovať je vhodný pre voľnomyšlienkarov, ktorí potrebujú slobodu a jej nízke náklady sú zasa atraktívne pre mladé rodiny.
Veľkou výhodou je aj to, že k jej umiestneniu nepotrebujete žiadne základy a dokonca neplatíte ani majetkovú daň. Architektom tejto rozprávkovej chaty s názvom ESCAPE je Kelly Davis. Jeho vidinou bolo vytvoriť univerzálny objekt, ktorý môže slúžiť aj ako chata, kancelárske priestory či prvé bývanie. Mesačné náklady na chod ESCAPE domčeka sú len 30 dolárov.
Lýdia Tkáčová / treehugger.com
Čítaj slovenské správy pohodlne aj v mobile. Stiahni si aplikáciu Slovak news reader









